loris.grange@erp-services.fr

07 87 19 63 88

Relevé d’intérieur

Besoin d’un devis pour un relevé de votre intérieur ?

Besoin d’un relevé de votre intérieur ?

Contactez-nous dès aujourd’hui pour discuter de vos projets et obtenir un devis personnalisé et gratuit. 

Demandez un devis ⬇️

 

N°1 du relevé d’intérieur

Expert en relevé d’intérieur de bâtiments

Relevé d’intérieur précis de bâtiments et d’espaces techniques grâce à notre matériel de haute précision.
Interventions sur zone publique et privée.

Intervention sur simple appel ou par mail avec RDV.

 

Table des matières

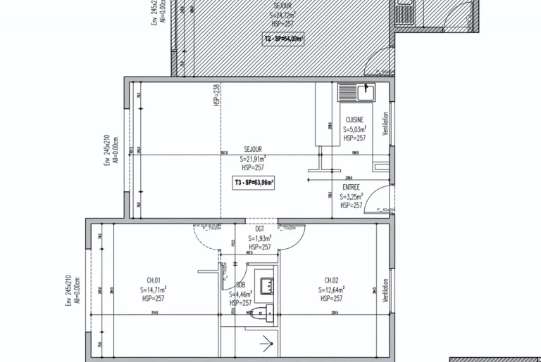
En plus d’une inspection extérieure de vos bâtiments (relevé de façaderelevé architectural et relevé topographique), il est important de réaliser des relevés d’intérieurs. Chez ERP SERVICES, votre bureau de géomètre-architecte, nous sommes en mesure de modéliser et cartographier avec précision l’intérieur de vos ouvrages tels que vos appartements, bureaux, entrepôts, locaux techniques, maisons ou sites industriels. Pour cela, nos équipes spécialisées utilisent du matériel numérique, technique et performant de haute technologie tels que des scanner, caméra 360 et logiciels informatiques.

Qu'est ce qu'un relevé d'intérieur ?

Il permet la représentation précise et détaillées de l’état d’un bâtiment ou de l’ensemble des pièces le constituant à un moment donné lors d’une visite. Il consiste à produire des documents représentatifs de l’intérieur de votre maison ou bâtiment. Le plus souvent, les plans et maquettes 3D représentatifs des pièces de vos ouvrages sont réalisés à l’échelle 1/50 ou 1/100. L’échelle 1/50 permet d’avoir une meilleure précision de mesure lors de la représentation des détails des relevés de l’intérieur de l’ouvrage, l’épaisseur des murs, les cloisons, les cheminées, la position des ouvertures (portes et fenêtres), les hauteurs sous plafond, le mobilier sanitaire..

À quoi sert-il ?

Le relevé d’intérieur est nécessaire lors d’étude de rénovation ou de réhabilitation d’un ouvrage dont on ne dispose pas encore la précision des plans ou qu’ils n’ont pas été mis à jour. Il peut également être utile d’entreprendre la réalisation des coupes pour représenter l’état actuel des hauteurs sous plafonds et des différents niveaux d’un ouvrage.

Plusieurs types de plans architecturaux existent. D’abord, il existe le plan d’architecture de coupe, il sert à la visualisation de l’intérieur d’un bâtiment ou d’une maison, du toit aux fondations. Cette coupe peut être horizontale ou verticale. Ensuite, le plan d’architecture de coupe vertical, il sert à présenter le bâtiment comme s’il avait été coupé et ouvert à un endroit précis. Il est également appelé plan d’élévation. Enfin, le plan d’architecture horizontal, qui sert à détailler les pièces niveau par niveau.

Le relevé d’intérieur permet la création de maquettes architecturales à l’aide de création de nuage de points

Comment s'effectue le relevé d'intérieur ?

Le relevé d’intérieur permet d’effectuer la réalisation des mesures de longueur et de hauteur de chaque pièce d’un ouvrage afin de déterminer leurs formes géographiques.

Ces mesures s’obtiennent grâce à l’obtention d’un nuage de point générés manuellement ou grâce à l’aide du logiciel numérique scanner laser 3D et de caméra 360. La caméra radar 360 est posée sur un trépied qui permet de scanner votre intérieur et de relever des nuages de points. Une fois ces mesures enregistrées, elles sont ensuite traitées sur des logiciels numériques exploitables de DAO (dessin assisté par ordinateur) tels que AutoCad, Revit ou encore Autodesk. Ces logiciels numériques permettent donc de réaliser des plans et maquettes précises des surfaces et de l’existant.

N’hésitez plus et faites appel en notre entreprise. Nous nous engageons à répondre à votre demande et à vous envoyer un devis en moins de 24h.

En bref...

Qu’est-ce que le relevé d'intérieur ?

Le relevé d’intérieur permet la représentation précise de l’état actuel d’un bâtiment ou de l’ensemble des pièces le constituant à un moment donné. Il consiste à produire des documents architecturaux représentatifs de l’intérieur des pièces de votre ouvrage.

Quels avantages réaliser un relevé d'intérieur ?

Le relevé d’intérieur est nécessaire lors d’étude de rénovation ou de réhabilitation d’un ouvrage dont on ne dispose pas encore des plans ou qu’ils n’ont pas été mis à jour.

Il peut se faire à l’aide de plans de coupe, verticaux ou horizontaux.

Comment est-il réalisé ?

Cette prestation peut être réalisée à l’aide d’outils tels que des scanner laser 3D et des caméra 360. Cette caméra est posée sur un trépied qui permet de scanner votre intérieur et de relever des mesures détaillées concernant l’état actuelles de vos surfaces. Une fois ces mesures enregistrées, elles sont ensuite traitées sur des logiciels exploitables de DAO (dessin assisté par ordinateur) tels que AutoCad, Revit ou encore Autodesk.

Travaillons ensemble
Demandez un devis en ligne

ERP Services est une entreprise spécialisée dans les études techniques, la détection de réseaux, le géoréférencement, la DAO, le SIG et le diagnostic de réseaux et de bâtiments sur l’Essonne (91) et pour toute la région parisienne.

contact

Téléphone : 07 87 19 63 88

E-mail : loris.grange@dev.peleweb.com

Adresse : 54 A Rés. Les Cendrennes

91180 Saint Germain Les Arpajon